2025工業互聯網成果展
一場聚焦于工業互聯網前沿技術與實踐成效的行業盛會
展覽時間
2025年2月19日-21日,展期3天
展覽地點
蘇州太湖國際會議中心
展覽內容
2025工業互聯網成果展重點圍繞工業互聯網發展成效,聚焦網絡、平臺、安全、標識、數據五大功能體系,邀請工業和信息化部工業互聯網試點項目、工業互聯網產業聯盟實驗室項目、實踐案例項目等單位,展示工業互聯網人工智能、5G-A、新型工業網絡等新技術、新產品、新應用、新生態,推動工業互聯網高質量發展。
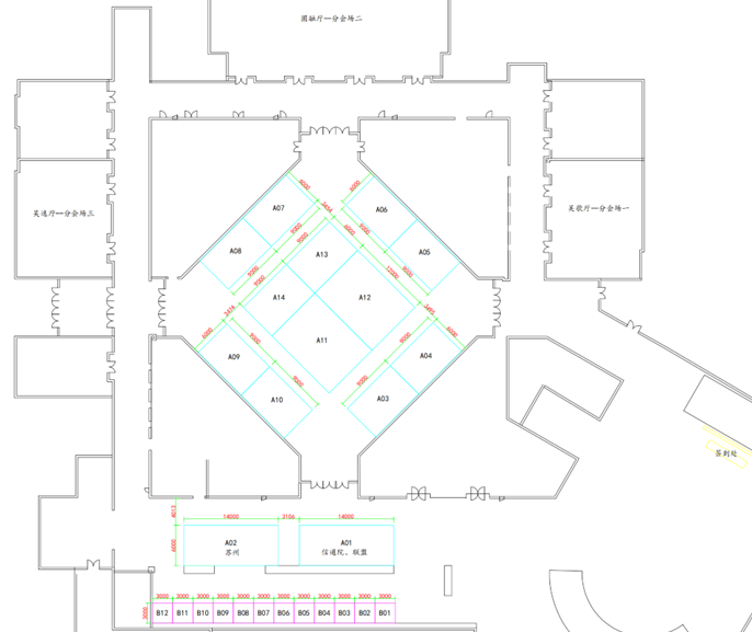
展覽布局

A展(A3-A14):展位尺寸9mx6m
B展(B1-B12):展位尺寸3mx3m
往屆展覽情況
大中小企業積極參展
成果展自2017年起,已舉辦五屆,吸引60余家工業互聯網領域典型企業參展,匯聚了網絡、平臺、安全、數據、標識等工業互聯網領域企業,通過實物講解、系統互動、場景體驗等,全方位展示當前工業互聯網的新技術、新產品、新方案。

現場觀眾熱情高漲
成果展自開辦以來,現場嘉賓人數超過10000人。嘉賓涵蓋工業和信息化部主管領導、工業互聯網戰略咨詢專家委員會代表、國內外權威專家、企業領袖、行業技術實踐者、產業組織代表等。供需雙方通過面對面交流,了解產品方案、技術參數、應用價值,促進項目合作。

權威媒體爭相報道
成果展及同期舉辦的工業互聯網大會,經中央電視臺、新華社、工業和信息化部網站、新華網、央視網、人民網、中國日報網、人民郵電報、中國工業報、新浪、搜狐、騰訊、鳳凰新聞、中國經濟周刊等100多家央媒及專業媒體報道,受到社會廣泛關注。

2025工業互聯網成果展現向各界誠摯發出參展邀請!
聯系方式
閆 霞
13810967023
yanxia@caict.ac.cn
林芳亦
15208250786
linfangyi@caict.ac.cn

更多工業互聯網大會信息
請鎖定“工業互聯網產業聯盟”
<<< END >>>